
Tilaluettelo
Tilaluettelo
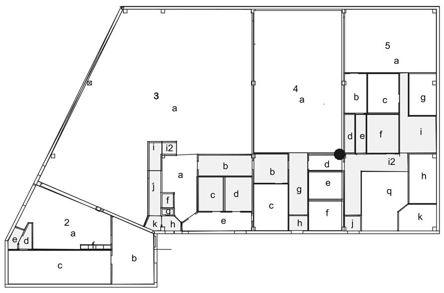
Vuokrattavien tilojen pohjakuva ja luettelo.



Työtila 3 q
Ikkunallinen työtila yläkerrassa. Huoneen numero B 21.
Koko 10 neliömetriä.
Vuokrattu!

Työtila 3 n
Ikkunallinen työtila yläkerrassa. Huoneen numero B 23.
Koko 10,2 neliömetriä.

Työtila 3 o
Ikkunallinen työtila yläkerrassa. Huoneen numero B 25.
Koko 14,1 neliömetriä.

Työtila 4 c
Ikkunallinen työtila alakerrassa. Huoneen numero B 14.
Koko 18,1 neliömetriä.
Vuokrattu!

Työtila 5 c
Työtila alakerrassa. Huoneen numero D 16.
Koko 14,3 neliömetriä.

Työtila 5 g
Työtila alakerrassa. Huoneen numero D 17.
Koko 13,4 neliömetriä.

Työtila 5 h
Työtila alakerrassa. Huoneen numero D 12.
Koko 16,4 neliömetriä.

Työtila 5 k
Ikkunallinen työtila alakerrassa. Huoneen numero D 11.
Koko 11 neliömetriä.

Työtila 5 m - Neukkari
Työtila yläkerrassa. Huoneen numero D 21.
Koko 35,5 neliömetriä.
Ei varattavissa tällä hetkellä.

Työtila 5 o
Työtila yläkerrassa. Huoneen numero D 25.
Koko 11,6 neliömetriä.
Ei varattavissa tällä hetkellä.

Studio 5 a
Studio alakerrassa.
Koko 64,4 neliömetriä.

Sali 3 a
Tanssisali alakerrassa.
Koko 352 neliömetriä.

Klubi 4 a
Klubi (ravintola) alakerrassa.
Koko 170 neliömetriä.